地脉的底蕴和时代的先声,在这里酝酿为时间和空间的宝藏,妥帖地安放潍坊人骨子里的都会森居理想生活。

我们重构都会复兴的经典审美与艺术风尚,呈现一处融合精英圈层文化的生活场景地标,
为阅历风云者绽放摩登时代的花样年华,在时间的长河里复兴经典的印际,回望风华绝代的倩影。

经典风格的棱角和华丽的装饰,复古中不失潮流范,低调中透露着奢华。

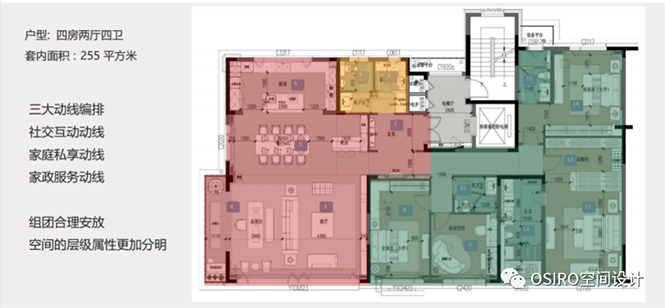
在空间规划上通过三大动线的编排,分别设置了客人社交型动线、家庭私享动线以及家政服务动线,
三条动线与相关功能组团合理安放,使空间的层级属性更加分明。


客厅体块鲜明的普拉达绿奢石电视背景墙,既是富有格调的艺术品,
同时兼顾了影视厅背景墙的功能,并以嵌入一架壁炉,点染冬日的阵阵暖意。


精致的餐厅,既有人间烟火的生活气息,也要点燃感官的艺术氛围。
东营吊灯点亮空间,更点亮一桌人间烟火


酒吧区柜内摆放着主人收藏的一瓶瓶洋酒,在这处安放心灵的地方里,
相邀相谈甚欢的好友,品一杯酒、交流对话,便是优雅生活的诠释。


我们精心在室内的留出一个空间,作为女主人自己的空间,这里是属于女性蜜友们的私密天地。
极强的视觉冲击力,让人忍不住也跟着欢快愉悦。展示柜里主人各处旅行藏品的陈列,一一述说着不同的往日记忆。



主卧
一处居所,亦是一种生活方式。
主卧重功能的划分,衣帽间简洁明了,男女主人收纳精细分区。
同时融入了minibar的功能,实现主套居家生活功能的完整性。
月光洒满房间,点亮床尾的落地灯,
在功能东营休闲椅上,抿上一杯小酒,这里成为主人安静思考及深度放松的私密时刻。


女儿房
自然轻松气氛,覆以空间丰富的想象力。
浪漫复古与温柔撞了个满怀。
从各处洒进的光,暖融清隽,漫出少女情调。


等风来,不如追风而去……
引擎启动的那一刻,伴随着的是热血、澎湃,
轰鸣是无畏的表达,热爱与执着。

